Отправить заявку
г. Тверь, ул. Новоторжская д.18 корп.1
БЦ «Аврора», офис 310
ежедневно, с 9.00 до 19.00
+7 (4822)777-395 Мы в WhatsApp
Жилой дом, д.Захожье, Торжокский р-н, Тверская обл.
New
Объект
проверен

Жилой дом, д.Захожье, Торжокский р-н, Тверская обл.

Тип недвижимости дом
Тип объекта Загородная недвижимость
Тип сделки Продажа
Этаж 1
Этажность 1
Регион Тверская область
Город Тверская область
Адрес деревня Захожье, 17
Номер дома / строения 17
Материал стен бревно
Отделка типовой ремонт
Площадь земельного участка 30 сот.
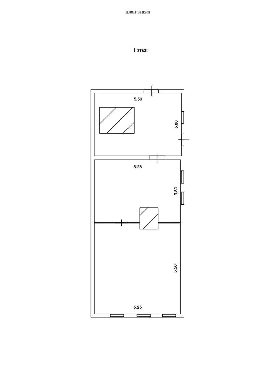
Общая площадь 64.6 кв.м. / сот.
Площадь по комнатам 20 20 кв.м.
Жилая площадь 40 кв.м.
Площадь кухни 20 кв.м.
Комнат 2
Возможность ипотеки есть
Возможность рассрочки нет
Раздельный санузел есть
Высота потолка 2.5 м.
Вид из окна двор и улица
Гараж / Паркинг во дворе или доме нет
Рельеф Ровный
Форма участка вытянутая
Категория земель Земли населенных пунктов
Использование земли ЛПХ
Расстояние от города 18 км.
Круглогодичный подъезд Да
Вода возможна скважина
Газ по улице центральный газопровод
Электричество в доме
Отопление печное
Окружение Лес, река
Электрическая мощность 15 квТ кВт.
Канализация выгребная яма
Баня есть
Ответственный агент
по объекту:
Букина Татьяна - фото ответственного агента по объекту
Букина Татьяна
Стоимость объекта:
1 600 000 ₽
24 768 ₽ за м2
заказать звонок

ОПИСАНИЕ

Жилой дом, для постоянного проживания!

Деревня газифицирована!

Тверская обл, Торжокский р-н, д. Захожье

О ДОМЕ:

Жилой крепкий бревенчатый дом, общей площадью 64,6 м.кв. Есть чердачное помещение, которое снаружи украшает резная фигура птицы, а вместе с белыми резными наличниками на окнах придают дому особую индивидуальность. Внутри дома произведен косметический ремонт, чистота и порядок! Для проживания две смежные жилые комнаты, между ними печка. Из комнаты выход в пристройку, которая используется, как летняя комната и места хранения.

Кухня имеет две зоны, используется, как прихожая с гардеробной и обеденная зона. Установлен кухонный гарнитур, газовая плита, приготовление на баллонном газе. Изюминка кухни печка-лежанка!  Из кухни выход в хозяйственную пристройку, где расположен туалет и подключение летнего водопровода с водонагревателем. Далее проход в крытое подворье, используется для хранения дров, инструментов и всяких бытовых мелочей, там же оборудована мастерская.

ПОСТРОЕН:

  • материал стен - бревно, обшит профилированной доской снаружи.
  • фундамент ленточный, подходит для большинства типов грунтов, цоколь отделан декоративными панелями под плитку
  • оконные рамы – стеклопакеты.
  • крыша металлическая, отливы.

КОММУНИКАЦИИ:

  • электричество везде проведено.
  • водопровод летний, рядом колонка.
  • отопление печное
  • газ баллонный для приготовления, центральный газопровод по границе участка
  • канализации нет.

ОБ УЧАСТКЕ:

Участок многоконтурный общей площадью 42 сотки. Кадастровые номера: 69:33:0240701:107 площадью 30 соток и 69:33:0240701:106 площадью 12 соток. Основной участок, на котором расположен дом, по бокам огорожен сеткой рабицей, задняя часть забором из профлиста с распашными воротами. Участок ежегодно обрабатывается, есть клумбы, грядки, теплицы, садовые насаждения, хоз. постройки.

На участке на против дома расположены два металлических гаража и далее амбар, дровяник, баня с парной, комнатой отдыха и отличным бонусом в виде пруда.

В ЧЕМ ПРИЕМУЩЕСТВА:

  • жилой дом с возможностью прописки
  • без долгов и обременений
  • один взрослый собственник

ФОРМА ОПЛАТЫ:

  • наличными средствами
  • кредитными средствами (ипотека)

ИНФРАСТРУКТУРА: Вся основная инфраструктура: школы, детский сады, мед. учреждения, отделение почтовой связи, а также различные магазины и ПВЗ расположены в поселениях Грузины и Мошки, дорога на транспорте займет 6-7 минут.  

В Захожье приезжает атолавка. Школьный автобус собирает детей в Мошкинскую школу. Установлены контейнеры для сбора мусора, который регулярно вывозят спецтехникой.

Из достопримечательностей местности можно выделить Родник, освященный во имя Пророка Иоанна Предтечи, Крестителя Господня, который расположен в лесу в 700 м южнее деревни Захожье.

Вблизи красивые леса богаты грибами и ягодами!

ТРАНСПОРТНАЯ ДОСТУПНОСТЬ: Круглогодичный подъезд до д. Захожье, которая относится к Грузинскому сельскому поселению.  По северной и восточной границе поселения протекает река Тверца, по западной границе проходит железная дорога «Лихославль—Ржев». Автодорога «Торжок—Высокое—Берново—Старица» пересекает поселение с севера на юг. До остановки общественного транспорта 10 минут от дома, маршруты № 316,317,320,323 и 542в.

Рядом деревни: Грузины, Юрьево, Костино, Млевичи(Усадьба), Мошки

Хотите жить, как вам нравится? Вы уже приглашены посмотреть этот дом!

СМОТРИТЕ ДРУГИЕ ВАРИАНТЫ

Земля, дачи, дачные домики, загородная недвижимость в Твери и области  — Дом, Тверская область, ПГТ Пено, переулок Школьный, дом 8 — фото
New
Объект
проверен

Дом, Тверская область, ПГТ Пено, переулок Школьный, дом 8

Город Пено
Улица школьный 8
Площадь 33.3
Этаж 1/1
690 000 ₽
20 721 ₽ за м2
Земля, дачи, дачные домики, загородная недвижимость в Твери и области  — Дача, Тверская область, д. Долматово, СНТ Лесная поляна, ул. Южная — фото
Объект
проверен

Дача, Тверская область, д. Долматово, СНТ Лесная поляна, ул. Южная

Город Тверская область
Улица СНТ Лесная поляна ул. Южная
Площадь 54
1 540 000 ₽
28 519 ₽ за м2
Земля, дачи, дачные домики, загородная недвижимость в Твери и области  — Садовый дом, СНТ Октябрь, Медновское с/п, д.Кобячево — фото
New
Объект
проверен

Садовый дом, СНТ Октябрь, Медновское с/п, д.Кобячево

Город Тверская область
Улица СНТ Октябрь 49
Площадь 23.9
Этаж 1/1
1 300 000 ₽
54 393 ₽ за м2
Земля, дачи, дачные домики, загородная недвижимость в Твери и области  — Дом Вольный пер.4 — фото

Дом Вольный пер.4

Город Тверь
Улица Вольный переулок 4
Район Пролетарский
Площадь 350
13 900 000 ₽
39 714 ₽ за м2
Земля, дачи, дачные домики, загородная недвижимость в Твери и области  — Дом, деревня Раслово — фото

Дом, деревня Раслово

Город Тверская область
Улица деревня Раслово
Площадь 135.4
5 500 000 ₽
40 620 ₽ за м2
Земля, дачи, дачные домики, загородная недвижимость в Твери и области  — Дом, Тверская область,Максатихинский р-н,д.Клевищи д.14 — фото
New
Объект
проверен

Дом, Тверская область,Максатихинский р-н,д.Клевищи д.14

Город Тверская область
Улица клевищи
Площадь 28.4
Этаж 1/1
150 000 ₽
5 282 ₽ за м2
Земля, дачи, дачные домики, загородная недвижимость в Твери и области  — Дача , Тверская обл., Зубцовский р-н, СНТ Денисовка — фото
New
Объект
проверен

Дача , Тверская обл., Зубцовский р-н, СНТ Денисовка

Город Тверская область
Улица Зубцовский район, СНТ Денисовка, 236
Площадь 57.4
2 000 000 ₽
34 843 ₽ за м2
Земля, дачи, дачные домики, загородная недвижимость в Твери и области  — Дом, Тверская область с/п Бурашевское, дер. Яковлево — фото
Объект
проверен

Дом, Тверская область с/п Бурашевское, дер. Яковлево

Город Тверская область
Улица Бурашевское сп, дер. Яковлево
Площадь 35
700 000 ₽
20 000 ₽ за м2
0